austin modern home floorplans austin sustainable house modern homes for sale in austin modern home photos austin sol austin on facebook contact sol austin for modern home information
Water Conservation Material Selections Energy Generation Net Zero Energy Austin Site Stewardship  

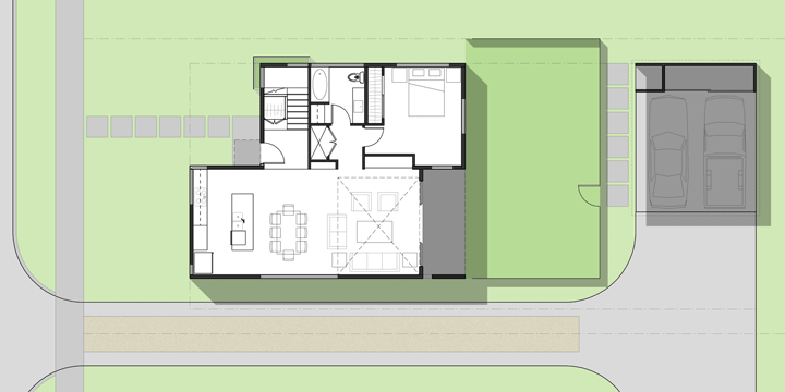
Modern, Sustainable House Plans

1452 Plan: A 2 story Modern home plan that sits lightly on its site and offering generous living spaces.

Specific design amenities:
  • living opens to large rear yard
  • rear balcony off of master
  • double height living area
  • bedrooms work well as flex or office spaces

Availability Directions to Sol
Neighborhood Map Home Types Sol Austin
1127 Perry Road
Austin, TX 78721

512.374.0946 x 29
Net-Zero Energy Formula
Water Conservation
Site Stewardship
Material Selections
Financial Model
Why Sol? Sol balances the financial and environmental impact of sustainable development with its political merits and implications. Visit krdb.com Designed by KRDB, built by beck-reit and sons Designed by KRDB  Built by Beck Reit and Sons
“As architects, we have a responsibility to take a longer term view of development and conceptualize more holistic, sustainable models.“
– Chris Krager, KRDB